It’s simple but full of lots of interesting views down the length of the house and secret spaces that delight. It is entered from the north via the driveway.
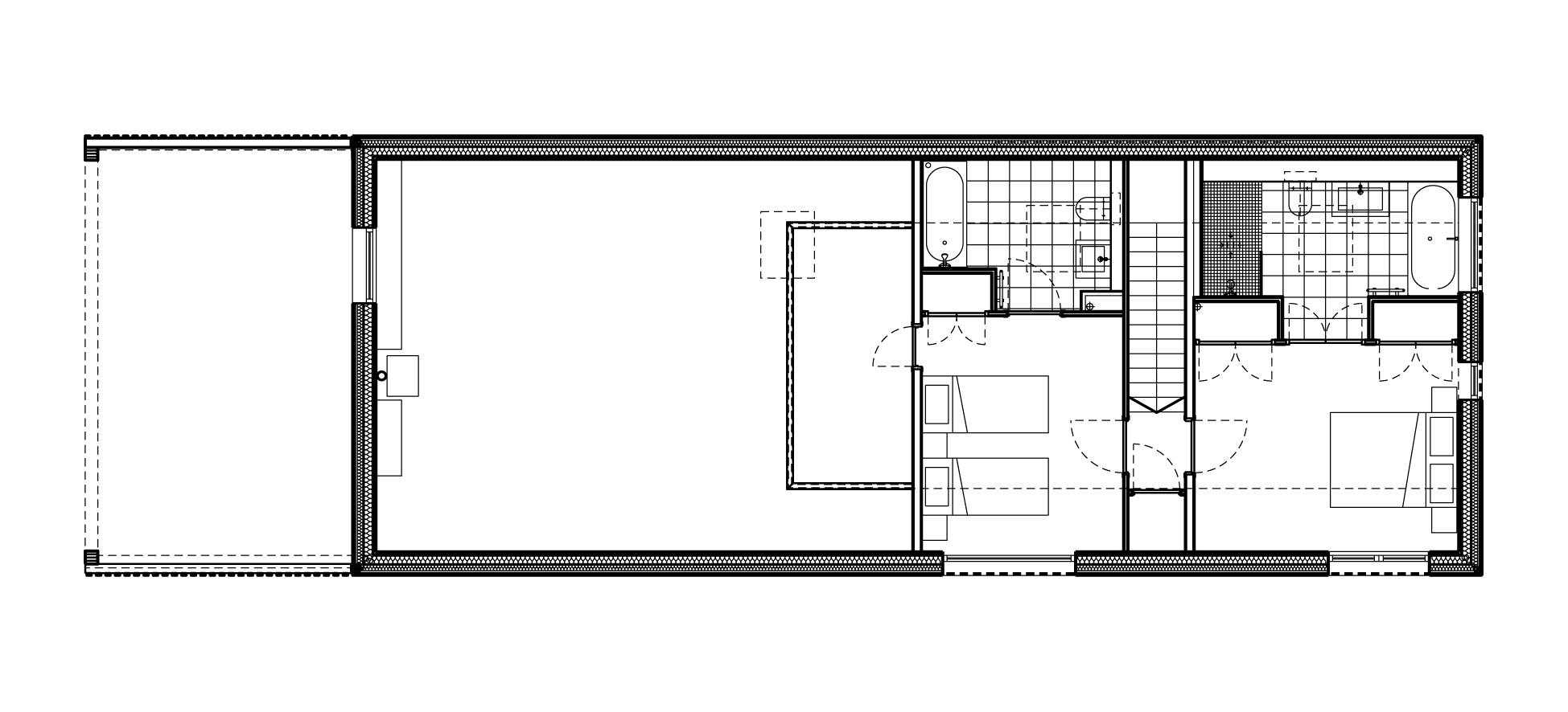
We wanted a bit of wow factor, so when you enter the open plan living area to the west you are greeted by a light and airy full height spacious room. To the east are two bedrooms with their own en-suite shower rooms.
In the centre of the plan is the kitchen, utility room and the staircase which leads to the first floor where there are two further bedrooms with en-suite bathrooms. A small door in the second bedroom leads to a balcony overlooking the living area.



